W celu świadczenia usług na najwyższym poziomie stosujemy pliki cookies. Korzystanie z naszej witryny oznacza, że będą one zamieszczane w Państwa urządzeniu. W każdym momencie można dokonać zmiany ustawień Państwa przeglądarki. Zobacz politykę cookies.
Powrót

Kładziemy nacisk na bezpieczeństwo

08.02.2024

Rozpoczęliśmy budowę kolejnej kładki dla pieszych nad Zakopianką, tym razem w Mogilanach. Między Krakowem a Myślenicami jest już sześć takich obiektów. Niebawem zacznie się budowa pięciu kolejnych.

zakopianka w Mogilanach, widok w kierunku przejścia dla pieszych i miejsca budowy kładki, pochmurna "jesienna" pogoda

Zmiana organizacji ruchu

W pierwszym etapie prac będziemy demontować wyspę przy skrzyżowaniu Zakopianki i ul. Żary. Dlatego też zamkniemy pas do skrętu w prawo, który jest na DK7. Sam wjazd na ul. Żary z Zakopianki będzie utrzymany.

Kładka

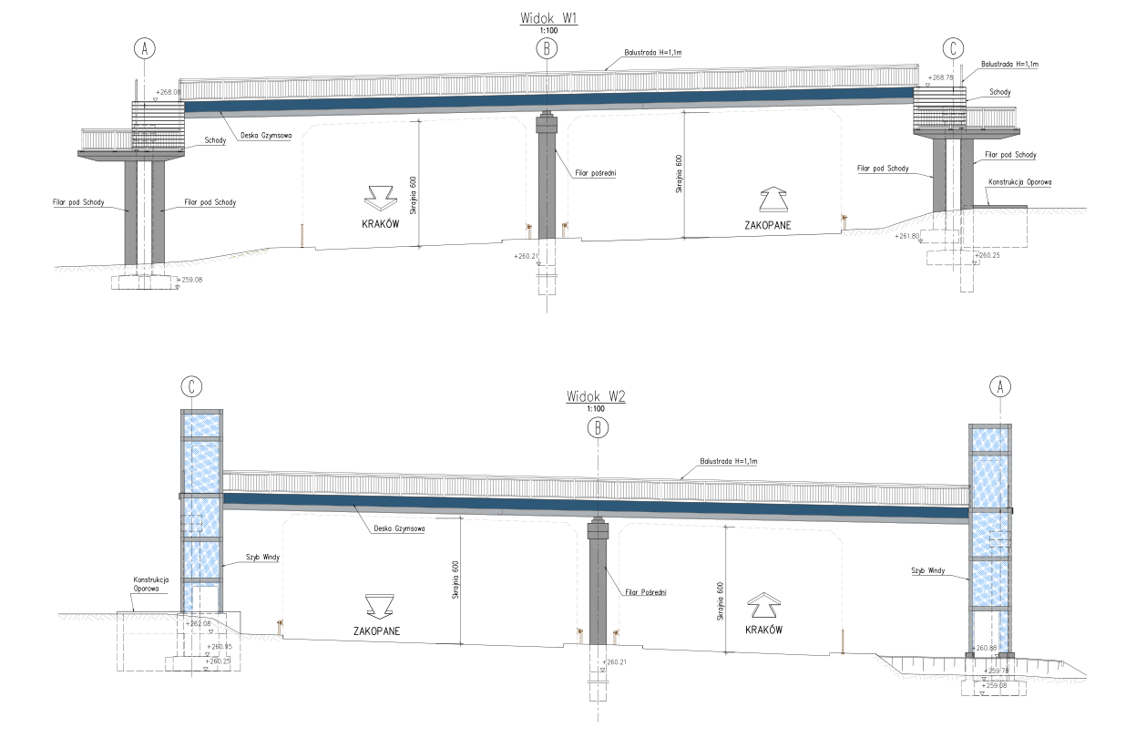
Nowe przejście dla pieszych nad Zakopianką zbudujemy w południowej części Mogilan, w okolicy przystanku autobusowego Włosań. Połączymy ul. Żary i św. Rity i zapewnimy bezpieczną komunikację między dwiema stronami DK7, dzięki czemu będziemy mogli zlikwidować funkcjonującą dziś w tym miejscu „zebrę”.  

Przez ten odcinek Zakopianki każdego dnia przejeżdża ponad 52 tysiące samochodów, kładka zdecydowanie wpłynie więc na poprawę bezpieczeństwa pieszych. Od 2017 roku były w tym miejscu trzy wypadki z udziałem pieszych. 

Kładka zostanie zbudowana na trzech podporach – dwie będą po obu stronach Zakopianki, a trzecia w środku, między jezdniami. Konstrukcja będzie miała 3,4 m szerokości i 40 m długości i będzie biec 6 m nad DK7. Wejście na kładkę będzie dostępne za pomocą schodów i wind.  

Koszt inwestycji to 6 mln zł. Prace planujemy zakończyć w listopadzie tego roku. 

Bezkolizyjne przejścia nad (i pod) Zakopianką

Kładka w Mogilanach to jedna z kilku tego rodzaju inwestycji, które realizujemy dla pieszych przechodzących przez Zakopiankę. Bliżej Krakowa, w Libertowie, w najbliższych latach powstaną trzy kładki: 

  • koło skrzyżowania DK7 z ul. Świetlistą; 
  • koło przystanku autobusowego Góra Libertowska; 
  • przy skrzyżowaniu z ul. Rumianą i ul. Przylesie. 

Te obiekty powstaną w ramach przebudowy Zakopianki w Libertowie. Inwestycja już się rozpoczęła i będzie realizowana do 2027 roku. 

Niespełna 1,5 km na południe od przejścia w Mogilanach powstanie kolejna kładka, w Głogoczowie. Jej budowę planujemy rozpocząć na wiosnę. Wtedy też powinna się zacząć budowa węzła drogowego w Krzyszkowicach – częścią tej inwestycji jest budowa tunelu pod DK7, który będzie służył również pieszym i pozwoli im na bezpieczne przejście na drugą stronę drogi. 

Ostatnia kładka powstaje w Myślenicach, w pobliżu przystanku autobusowego Tarnówka i dawnego Cmentarza Żydowskiego. Ten obiekt budujemy w ramach większej inwestycji, jaką jest węzeł Myślenice. Oba węzły planujemy zrealizować do końca 2025 roku. 

Zdjęcia (3)

{"register":{"columns":[]}}