Powrót

Ogłoszenie o zamówieniu na roboty remontowo - budowlane

30.07.2021

Zapraszamy do udziału w postępowaniu o udzielenie zamówienia publicznego na realizację zadania pn: „Roboty budowlane – modernizacja budynków oraz placu manewrowego Komendy Powiatowej Państwowej Straży Pożarnej w Sokółce” zgodnie z wymaganiami wynikającymi z poniższej dokumentacji.

Aktualizacja na dzień 06.08.2021r. -  Ogłoszenie o zmianie ogłoszenia

Materiały

1. ogłoszenie o zamówieniu PT2370.6.2021.MM
1​_ogłoszenie​_o​_zamówienieu​_PT237062021MM.pdf 0.10MB
2 SWZ roboty budowlane
2​_SWZ​_roboty​_budowlane.docx 0.06MB
3. Załącznik nr 2 - formularz oferty
3​_Załącznik​_nr​_2​_-​_formularz​_oferty.docx 0.02MB
4. Załącznik nr 3- oświadczenie wykonawcy
4​_Załącznik​_nr​_3-​_oświadczenie​_wykonawcy.docx 0.02MB
5. Załącznik nr 4 - wzór umowy.
5​_Załącznik​_nr​_4​_-​_wzór​_umowy.docx 0.03MB
6. Załącznik nr 5 - wykaz robót budowlanych
6​_Załącznik​_nr​_5​_-​_wykaz​_robót​_budowlanych.docx 0.01MB
7. Załącznik nr 6 - wykaz osób
7​_Załącznik​_nr​_6​_-​_wykaz​_osób.docx 0.01MB
8.1. OPZ Modernizacja budynku garażowo - warsztatowego PJRG Dąbrowa Załącznik nr 1 do ZP 2370.6.2021.MM​_CZĘŚĆ1
81​_OPZ​_Modernizacja​_​_budynku​_garażowow​_warsztatowego​_PJRG​_Dąbrowa​_Załącznik​_nr​_1​_do​_ZP​_237062021MM​_CZĘŚĆ1.pdf 1.20MB
8.2. Załącznik nr 1 do OPZ​_CZĘŚĆ1​_PT2370.6.2021.MM​_ przedmiar robót modernizacja budynku garaż-warszta​_PJRG Dąbrowa Bł.
82​_Załącznik​_nr​_1​_do​_OPZ​_CZĘŚĆ1​_PT237062021MM​_​_przedmiar​_robót​_modernizacja​_budynku​_garaż-warszta​_PJRG​_Dąbrowa​_Bł.pdf 0.65MB
8.3. Załącznik nr 2 do OPZ​_CZĘŚĆ1​_PT2370.6.2021.MM​_ branża elektryczna modernizacja budynku garaż-warszta​_PJRG Dąbrowa Bł.
83​_Załącznik​_nr​_2​_do​_OPZ​_CZĘŚĆ1​_PT237062021MM​_​_branża​_elektryczna​_modernizacja​_budynku​_garaż-warszta​_PJRG​_Dąbrowa​_Bł.pdf 2.07MB
9.1 OPZ​_Modernizacja placu manewrowego​_Załącznik nr 1 do ZP 2370.6.2021.MM​_CZĘŚĆ2
91​_OPZ​_Modernizacja​_​_placu​_manewrowego​_Załącznik​_nr​_1​_do​_ZP​_237062021MM​_CZĘŚĆ2.pdf 0.16MB
9.2. Załącznik nr 1 do OPZ​_CZĘŚĆ2​_PT2370.6.2021.MM​_ przedmiar robót​_modernizacja placu manewrowego
92​_Załącznik​_nr​_1​_do​_OPZ​_CZĘŚĆ2​_PT237062021MM​_​_przedmiar​_robót​_modernizacja​_placu​_manewrowego.pdf 0.45MB
9.3. Załącznik nr 2 do OPZ​_CZĘŚĆ 2​_PT2370.6.2021.MM​_zdjęcie poglądowe
93​_Załącznik​_nr​_2​_do​_OPZ​_CZĘŚĆ​_2​_PT237062021MM​_zdjęcie​_podlądowe.jpg 3.44MB
9.4. Załącznik nr 3 do OPZ​_CZĘŚĆ 2​_PT2370.6.2021.MM​_szkic placu manewrowego z wymiarami
94​_Załącznik​_nr​_3​_do​_OPZ​_CZĘŚĆ​_2​_PT237062021MM​_szkic​_placu​_manewrowego​_z​_wymiarami.jpg 0.07MB
9.5. Załącznik nr 4 do OPZ​_CZĘŚĆ 2​_PT2370.6.2021.MM​_wizualizacja budynku z płyt warstwowych
95​_Załącznik​_nr​_4​_do​_OPZ​_CZĘŚĆ​_2​_PT237062021MM​_wizualizacja​_budynku​_z​_płyt​_warstwowych.jpg 0.09MB
10.1. OPZ​_Modernizacja​_ SKKP+pom. przyległe Załącznik nr 1 do ZP 2370.6.2021.MM​_CZĘŚĆ 3
101​_OPZ​_Modernizacja​_​_SKKP+pom​_przyległe​_Załącznik​_nr​_1​_do​_ZP​_237062021MM​_CZĘŚĆ​_3.pdf 0.14MB
10.2. Załącznik nr 1 do OPZ​_CZĘŚĆ 3​_PT2370.6.2021.MM​_ przedmiar robót modernizacja SKKP +pom. przyległe
102​_Załącznik​_nr​_1​_do​_OPZ​_CZĘŚĆ​_3​_PT237062021MM​_​_przedmiar​_robót​_modernizacja​_SKKP​_+pom​_przyległe.pdf 1.35MB
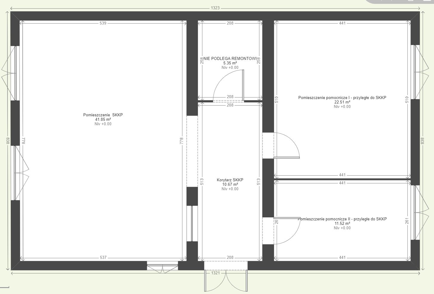
10.3. Załącznik nr 2 do OPZ​_CZĘŚĆ 3​_PT2370.6.2021.MM​_rzut pomieszczeń
103​_Załącznik​_nr​_2​_do​_OPZ​_CZĘŚĆ​_3​_PT237062021MM​_rzut​_pomieszczeń.jpg 0.08MB
Modyfikacja SWZ
Modyfikacja​_SWZ.docx 0.01MB
Ogłoszenie o zmianie ogłoszenia
Ogłoszenie​_o​_zmianie​_ogłoszenia.pdf 0.03MB
Informacja o kwocie jaką zamawiający zamierza przeznaczyć na realizację zadania
Informacja​_o​_kwocie​_jaką​_Zamawiający​_zamierza​_przezanaczyć​_na​_realizację​_zadania.pdf 0.25MB
Informacja z otwarcia ofert
Informacja​_z​_otwarcia​_ofert.pdf 0.31MB
Informacja o unieważnieniu postępowania o udzielenie zamówienia
Informacja​_o​_unieważnieniu​_postępowania​_o​_udzielenie​_zamówienia.pdf 0.26MB
Logo Biuletynu Informacji Publicznej
Informacje o publikacji dokumentu
Pierwsza publikacja:
30.07.2021 09:45 Zbigniew Makar
Wytwarzający/ Odpowiadający:
Mariusz Miszkin
Tytuł Wersja Dane zmiany / publikacji
Ogłoszenie o zamówieniu na roboty remontowo - budowlane 5.0 08.10.2021 09:49 st. bryg. mgr inż. Dariusz K. Łukaszewicz
Ogłoszenie o zamówieniu na roboty remontowo - budowlane 4.0 12.08.2021 12:52 Zbigniew Makar
Ogłoszenie o zamówieniu na roboty remontowo - budowlane 3.0 12.08.2021 10:36 Zbigniew Makar
Ogłoszenie o zamówieniu na roboty remontowo - budowlane 2.0 06.08.2021 11:13 Zbigniew Makar
Ogłoszenie o zamówieniu na roboty remontowo - budowlane 1.0 30.07.2021 09:45 Zbigniew Makar

Aby uzyskać archiwalną wersję należy skontaktować się z Redakcją BIP

{"register":{"columns":[]}}