Powrót

Zapytanie ofertowe - "Dostawa, montaż i uruchomienie zestawu klimatyzacyjnego naściennego typu VRF składającego się z 6 jednostek wewnętrznych i jednej jednostki zewnętrznej"

Materiały

Zapytanie​_ofertowe
Zapytanie​_ofertowe​_2010-726242022.pdf 1.34MB
ZAŁĄCZNIKI​_do​_zapytania
ZAŁĄCZNIKI​_do​_zapytania​_2010-726242022.docx 0.05MB
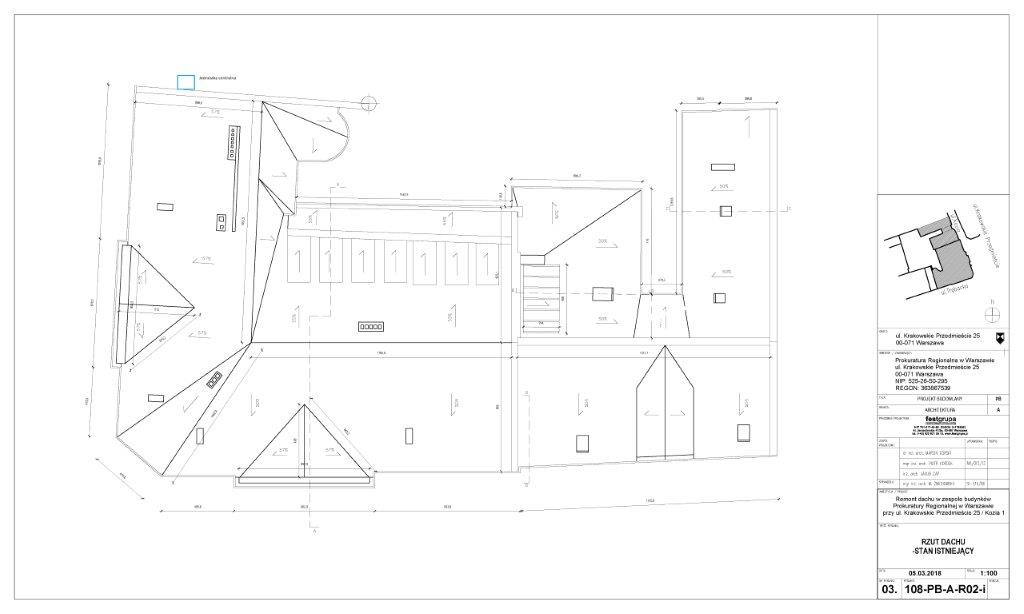
Rzut dachu instalacja klimatyzacji
RZUT​_dachu​_klimatyzacja.jpg 0.05MB
Rzut lokalizacji instalacja klimatyzacji
Rzut​_lokalizacji​_klimatyzacja.pdf 1.14MB
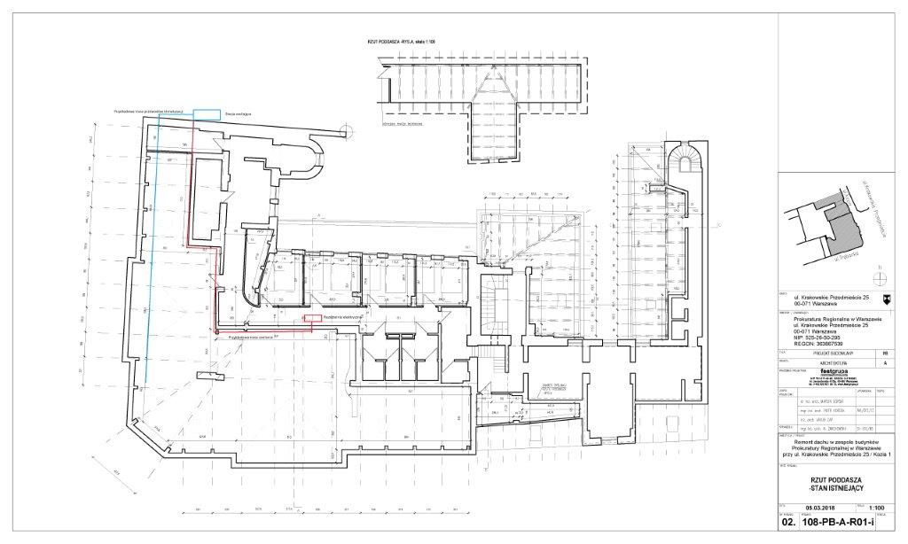
Rzut poddasza instalacja klimatyzacji
RZUT​_poddasza​_klimatyzacja.jpg 0.08MB
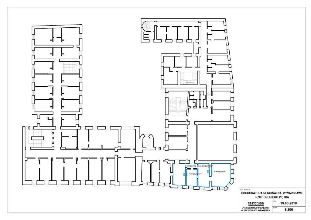
Rzut drugiego piętra instalacja kliamtyzacji
RZUT​_2​_PIĘTRO​_klimatyzacja.jpg 0.07MB
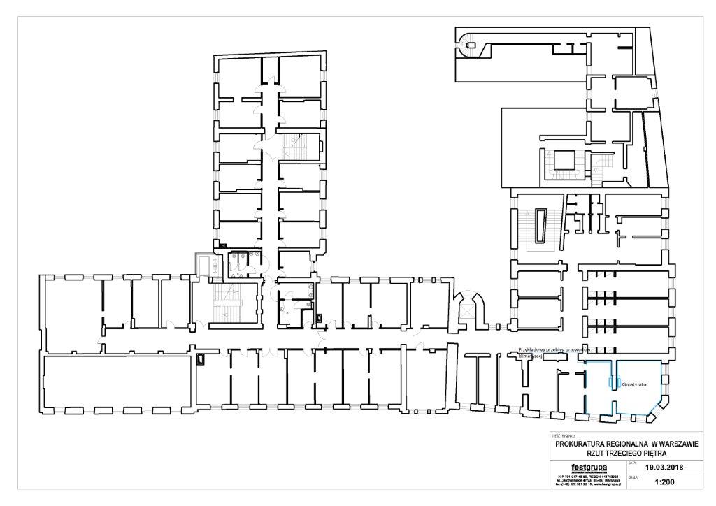
Rzut trzeciego piętra instalacha klimatyzacji
RZUT​_3​_PIĘTRO​_klimatyzacja.jpg 0.08MB
Informacja z otwarcia ofert na dostawę i montaż klimatyzacji
Informacja​_Nr​_2010-726242022.pdf 0.06MB
Zawiadomienie o wyborze oferty dostawa i montaż klimatyzacji
Zawiadomienie​_o​_wyborze​_oferty​_dostawa​_i​_montaż​_klimatyzacji.pdf 0.04MB
{"register":{"columns":[]}}