W celu świadczenia usług na najwyższym poziomie stosujemy pliki cookies. Korzystanie z naszej witryny oznacza, że będą one zamieszczane w Państwa urządzeniu. W każdym momencie można dokonać zmiany ustawień Państwa przeglądarki. Zobacz politykę cookies.
Powrót

Zamówienie publiczne

Nazwa zamówienia

Uwaga, nowe warunki przetargowe na dzierżawę MOP Niegosławice Wschód i Zachód

  • Status zamówienia: Zakończone
  • Numer zamówienia:OZG.Z-1.630.17.2025
  • Data rozpoczęcia: 30.06.2025
  • Data zakończenia: 29.08.2025
  • Jednostka publikująca:Oddział w Zielonej Górze
  • Opis zamówienia:Celem postępowania przetargowego jest wybór podmiotu lub podmiotów, które wydzierżawią nieruchomości zlokalizowane przy drodze ekspresowej S3a w celu wybudowania i prowadzenia działalności związanej z obsługą ruchu w formie MOP.

Materiały

Załącznik 5g - Niegosławice Zachód
Załącznik​_5g​_-​_Niegosławice​_Zachód​_27062025.pdf 0.34MB
Załącznik 5g - Niegosławice Wschód
Załącznik​_5g​_-​_Niegosławice​_Wschód​_27062025.pdf 0.21MB
Załącznik 5f - SST - Utrzymanie MOP-ów Niegosławice Wschód i Zachód
Załącznik​_5f​_-​_SST​_-​_Utrzymanie​_MOP-ów​_Niegosławice​_​_Wschód​_i​_Zachód​_-​_11062025.doc 0.17MB
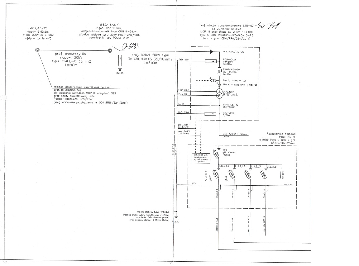
Załącznik 5e - Schemat jednokreskowy zasilania
Załącznik​_5e​_-​_Schemat​_jednokreskowy​_zasilania.jpg 0.13MB
Załącznik 5d - Mapa powykonawcza obu obiektów
Załącznik​_5d​_-​_Mapa​_powykonawcza​_obu​_obiektów.pdf 8.26MB
Załącznik 5c - wodociąg 2 z 2
Załącznik​_5c​_-​_wodociąg​_2​_z​_2.docx 0.84MB
Załącznik 5c - wodociąg 1 z 2.
Załącznik​_5c​_-​_wodociąg​_1​_z​_2.docx 0.82MB
Załącznik 5c - OT zakres PB - Drogi
Załącznik​_5c​_-​_OT​_zakres​_PB​_-​_Drogi.pdf 0.99MB
Załącznik 5c - OT zakres PB SANITARNY.
Załącznik​_5c​_-​_OT​_zakres​_PB​_SANITARNY.pdf 2.01MB
Załącznik 5c - OT zakres PAB - Budynki
Załącznik​_5c​_-​_OT​_zakres​_PAB​_-​_Budynki.pdf 1.47MB
Załącznik 5b - Mapa orientacyjna
Załącznik​_5b​_-​_Mapa​_orientacyjna.jpg 0.31MB
Załącznik 5a - PZT - Niegosławice Zachód
Załącznik​_5a​_-​_PZT​_-​_Niegosławice​_Zachód.pdf 1.16MB
Załącznik 5a - PZT - NIegosławice Wschód
Załącznik​_5a​_-​_PZT​_-​_NIegosławice​_Wschód.pdf 1.21MB
Załącznik 3 - OPF Niegosławice Zachód
Załącznik​_3​_-​_OPF​_Niegosławice​_Zachód​_30062025.doc 0.23MB
Załącznik 3 - OPF Niegosławice Wschód
Załącznik​_3​_-​_OPF​_Niegosławice​_Wschód​_30062025.doc 0.22MB
Ogłoszenie o przetargu
Ogloszenie​_o​_przetargu.pdf 0.07MB
MOP Niegosławice Zachód Zakres Utrzymania
MOP​_Niegosławice​_Zachód​_Zakres​_Utrzymania.pdf 0.22MB
MOP Niegosławice Wschód Zakres Utrzymania
MOP​_Niegosławice​_Wschód​_Zakres​_Utrzymania.pdf 0.13MB
IWP
IWP​_30062025.pdf 0.37MB
IWP Informacja o warunkach przetargu
IWP​_-​_Niegosławice​_Wschód​_i​_Zachód​_30062025.doc 0.15MB
Ogłoszenie o zamówieniu
1Ogłoszenie​_o​_przetargu​_na​_dzierżawę​_MOP​_30062025.docx 0.03MB
Informacja o unieważnieniu przetargu
Informacja​_o​_unieważnieniu​_przetargu.pdf 0.08MB
{"register":{"columns":[]}}