Stolarki
Są nieodłącznym elementem elewacji historycznych obiektów. Najczęściej posiadają indywidualnie zaprojektowane formy i kolorystykę, stanowiące istotny element budynku o charakterze dekoracyjnym a zarazem podkreślającym harmonię proporcji w obrębie detalu architektonicznego ścian oraz otworów, a nierzadko definiującym przynależność stylową i charakter całej budowli.
W związku z powyższym należy skłaniać się w kierunku renowacji istniejącej historycznej stolarki okiennej i drzwiowej, a nie jej wymiany na nową.
W tym temacie polecamy opracowany przezNarodowy Instytut Dziedzictwa Poradnik remontu i konserwacji historycznej stolarki okiennej:
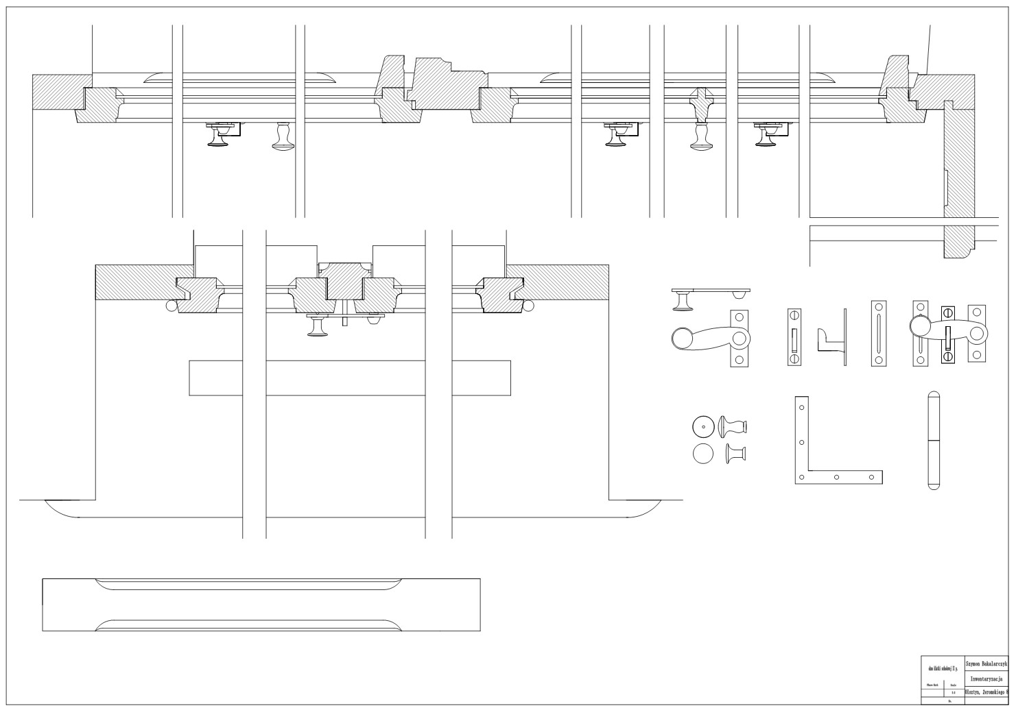
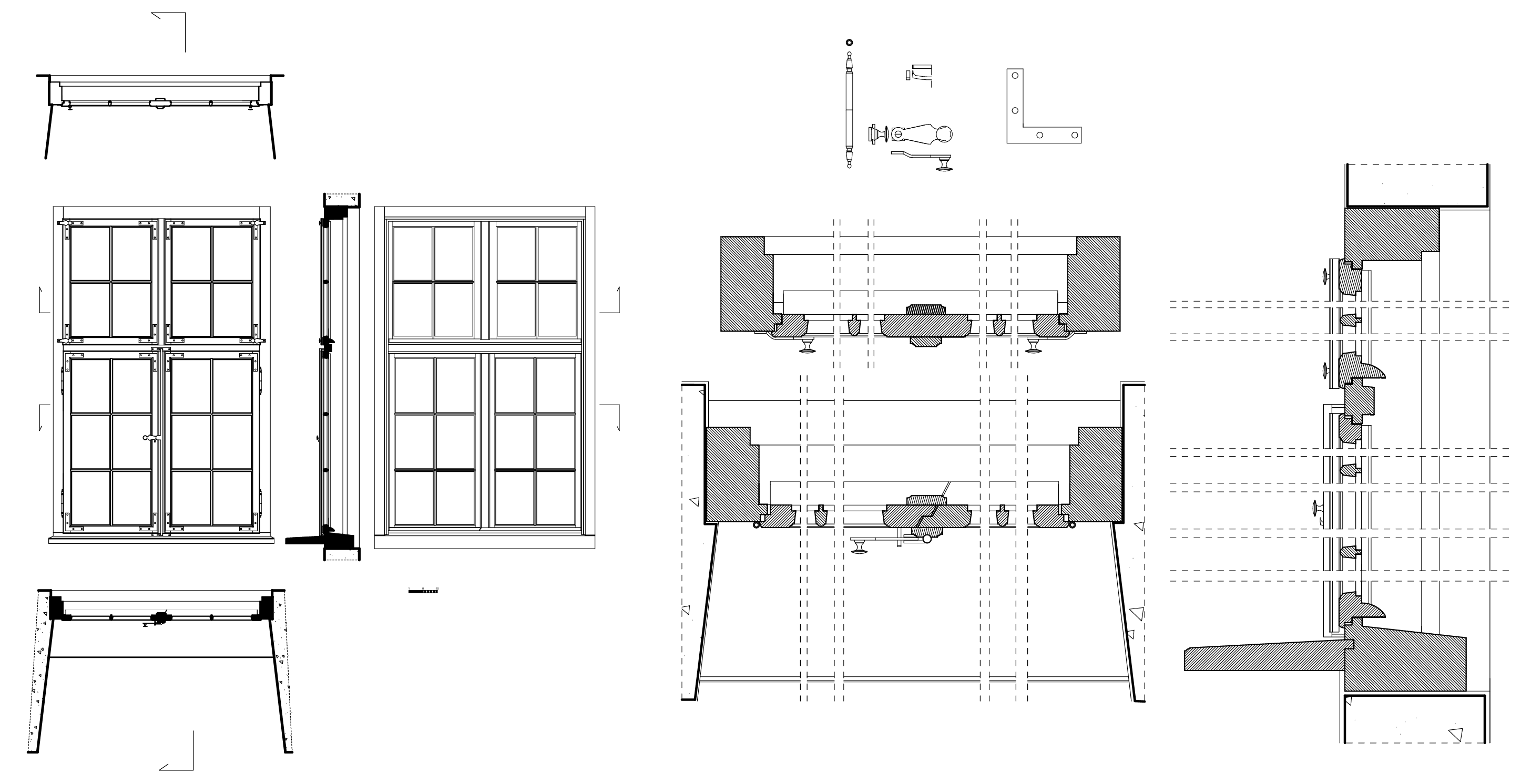
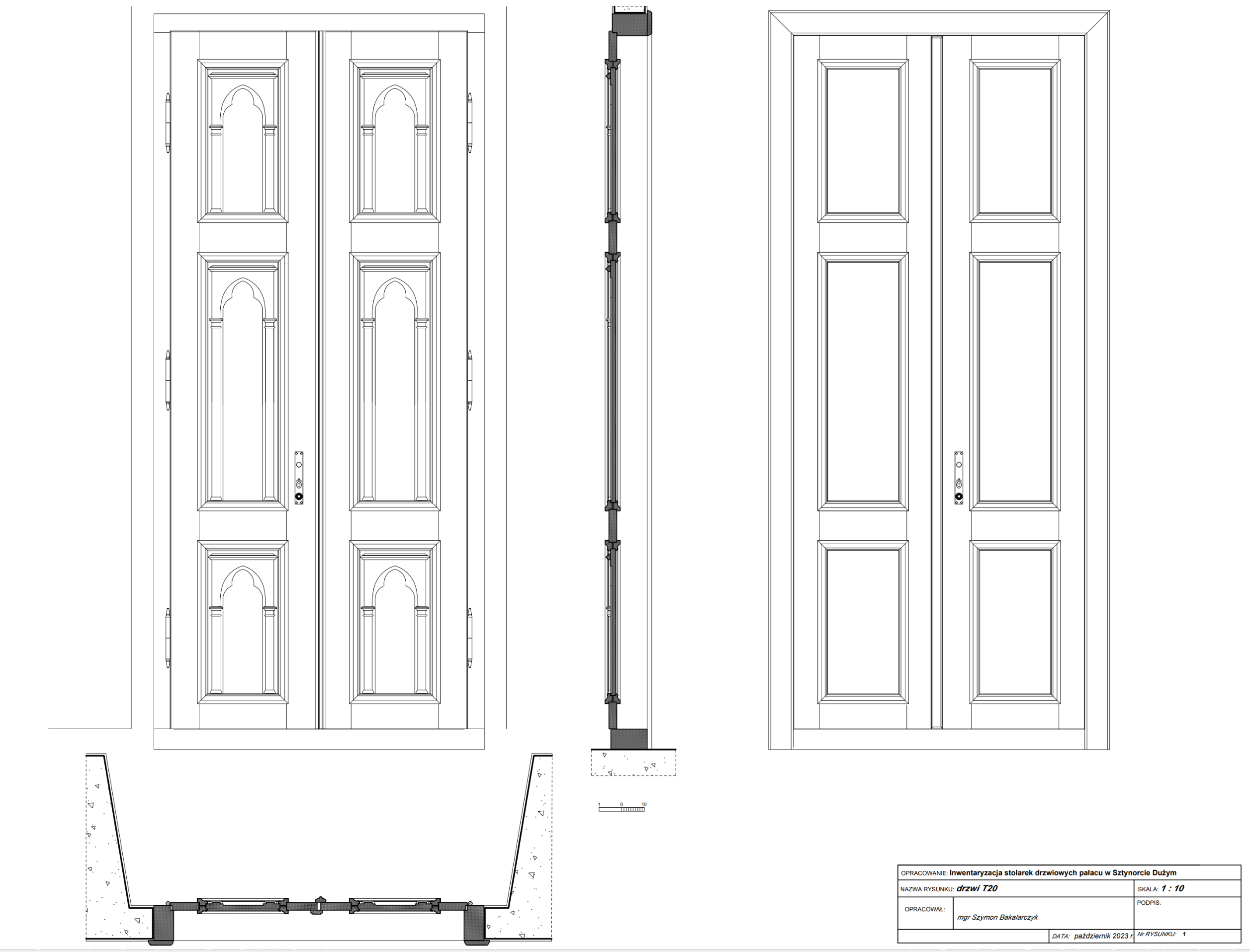
W przypadku konieczności wymiany zniszczonych elementów bądź całych egzemplarzy stolarek, należy je odtworzyć na wzór oryginału (zachowując kształt, konstrukcję, proporcje, profile, podziały, materiał) w oparciu o wykonaną inwentaryzację rysunkowo-pomiarową w skali 1:10 wraz z detalami 1:1. W kwestii możliwości wymiany całych stolarek, organ podejmie stanowisko po przedłożeniu dokumentacji konserwatorskiej dot. jej chronologii, stratygrafii(kolorystyki) i stanu zachowania. Wymiana wymaga również przedłożenia szczegółowego projektu, który pozwoli zweryfikować poprawność odtworzenia cech oryginalnej stolarki.
Na końcu artykułu znajdą Państwo przykłady prawidłowych inwentaryzacji.

Zaznaczyć należy, iż wymogi konserwatorskie wykluczają stosowanie stolarek z PVC (plastikowych) - ze względu na brak możliwości odtworzenia faktury, kształtu, grubości i profilowania ramiaków drewnianych. W oknach PVC inna jest również wielkość przeszkleń i głębokość osadzenia szklenia w skrzydłach, jak i samych skrzydeł w ramie.
Dla otworów okiennych i drzwiowych w budynku, w których nie zachowały się oryginalne stolarki, należy zaprojektować nowe na zasadzie analogii, o formach wynikających z analizy źródeł ikonograficznych oraz przechowywanych w tut. urzędzie opracowań. W przypadku braku materiałów pozwalających zidentyfikować pierwotną formę stolarek, dopuszczalne jest wykonanie nowych o formie nawiązującej do stolarek historycznych występujących w budynkach o podobnym okresie powstania i stylistyce, w kolorystyce wynikającej z badań konserwatorskich pozostałych zachowanych stolarek oraz elewacji przedmiotowego budynku.
Należy pamiętać, że wyższa energooszczędność okien jednoramowych, reklamowana przez producentów jest jedynie pozorna, ponieważ współczynnik przenikania ciepła zespolonego pakietu dwuszybowego wypełnionego argonem, o standardowej grubości 24mm jest około trzykrotnie wyższy, niż tradycyjnego okna skrzynkowego lub ościeżnicowego zdwojonego, o typowej odległości między skrzydłami 10cm – przy założeniu ich szczelności, wynikającej z właściwej konserwacji i zastosowania uszczelek na połączeniach.

Istotny problem stanowi również pomysł modyfikacji oryginalnego szklenia witrażowego w obiektach sakralnych poprzez montaż dodatkowej szyby od zewnątrz, argumentowany poprawą właściwości izolacyjnych i zabezpieczeniem przed uszkodzeniem mechanicznym.
Jest to oceniane negatywnie, ponieważ wiąże się z całkowitą zmianą ich estetyki - najczęściej stosowane, duże przezroczyste tafle szkła przez większość dnia odbijają widok nieba czy chmur, przez co pierwotna kolorystyka, faktura szklenia i drobne ołowiane podziały typowe dla dawnej architektury stają się praktycznie niewidoczne, a całe okno wyglądem zbliża się do współczesnych rozwiązań w obiektach przemysłowych. Mimo braku odbić, silną deformację estetyki wprowadza również sporadycznie stosowane w roli ochronnej szkło fakturalne.
Oczywiście, najlepszym rozwiązaniem z punktu widzenia autentyzmu i utrwalenia historycznej konstrukcji oraz estetyki jest pozostawienie bądź rekonstrukcja okien w pierwotnej formie. Jako, że problem dewastacji jest raczej marginalny, ewentualne szklenie izolacyjne powinno znaleźć się od wnętrza, gdzie odbicia na szybach stanowią problem głównie wieczorem i w nocy po włączeniu sztucznego oświetlenia.


Nawet najlepsza dokumentacja projektowa czy konserwatorska nie gwarantuje dobrych efektów prac przy zabytku, jeżeli właściciel nie wykazuje podstawowej wrażliwości estetycznej i nie przykłada wagi do jakości realizowanego zlecenia.
W przypadku elementów rekonstruowanych wg rysunków i zdjęć, takich jak detale architektoniczne na elewacji, okna i drzwi, czy tralki balustrady schodowej, nie jest wymagana wiedza specjalistyczna do stwierdzenia, czy wygląd nowych elementów jest zgodny z zamówieniem i oryginalnymi egzemplarzami, zachowanymi jeszcze w budynku.
W razie wątpliwości mogą Państwo zawsze skonsultować się z pracownikami naszego urzędu i wysłać nam zdjęcia gotowych stolarek przed rozliczeniem inwestycji. Zwracamy na to uwagę, bo po zapłacie wyegzekwowanie poprawek od wykonawcy okazuje się już zwykle niemożliwe.
Przed wydaniem pozwolenia na wymianę stolarek zawsze wymagamy dostarczenia rysunków, dzięki czemu mogą Państwo samodzielnie porównać element wykonany z zamówionym, a stolarz wie, co ma wykonać.
W przypadku dużych inwestycji część inwestorów zwraca się do nas z zapytaniem już na etapie pierwszego egzemplarza wzorcowego. W ostatnim czasie konsultacje takie prowadziliśmy dla Starostwa Powiatowego w Mrągowie i Polsko-Niemieckiego Centrum Młodzieży Europejskiej.
Przypominamy jednocześnie, że akceptowanie okien wykonanych nieprawidłowo, z reguły nie wiąże się z żadną oszczędnością dla inwestora, a może jedynie narazić go na brak możliwości rozliczenia dotacji/refundacji lub nałożenie administracyjnej kary finansowej za realizację prac niezgodnie z pozwoleniem.
Odrębną kwestią jest powstający chaos estetyczny w postaci różnych kształtów i kolorów okien w każdym z mieszkań w budynkach wielorodzinnych.
